.
Parque reservado
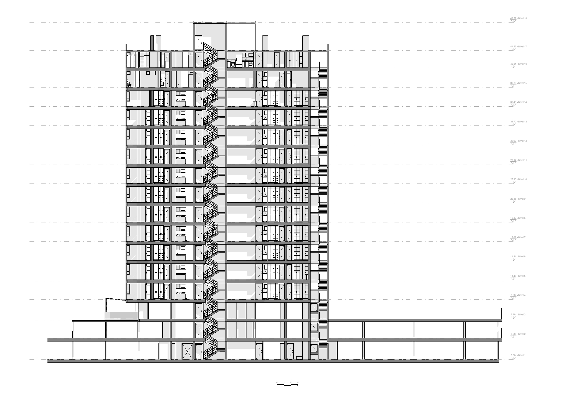
Es un proyecto que combina diseño, confort y modernidad en un solo lugar. Cada espacio ha sido pensado para ofrecer una experiencia de vida cálida, práctica y funcional, con ambientes amplios, llenos de luz natural y detalles que marcan la diferencia.
Su arquitectura contemporánea integra zonas sociales, privadas y de descanso, creando un hogar ideal para disfrutar en familia y compartir momentos únicos. Acabados modernos y elegantes, pisos tipo madera y tonos neutros que aportan calidez, fachada en ladrillo a la vista con diseño contemporáneo, espacios funcionales que se adaptan al estilo de vida actual.
Diseño
Signo3d Arq Viz S.A.S.
Diseño estructural
Signo3d Arq Viz S.A.S.
Ubicación
Tunja, Colombia
Tipo
Residencial
Año
2017
